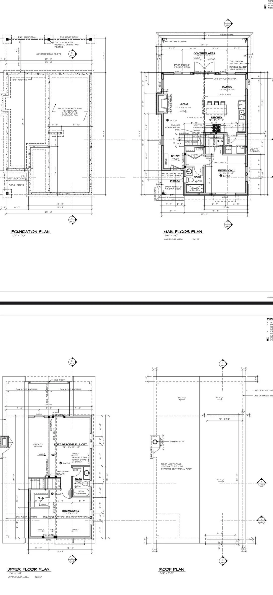
House Plans
Have custom blueprints? Bring them to us. Need inspiration or can’t find exactly what you’re looking for? Shannon Homes & Outdoors will help tailor a home plan that fits your family’s needs.
Explore beautiful designs for inspiration at Architectural Designs.
Every home. Every size. Every dream. Built by Shannon Homes & Outdoors.

